Soleil Rouge
Surélévation d’une maison
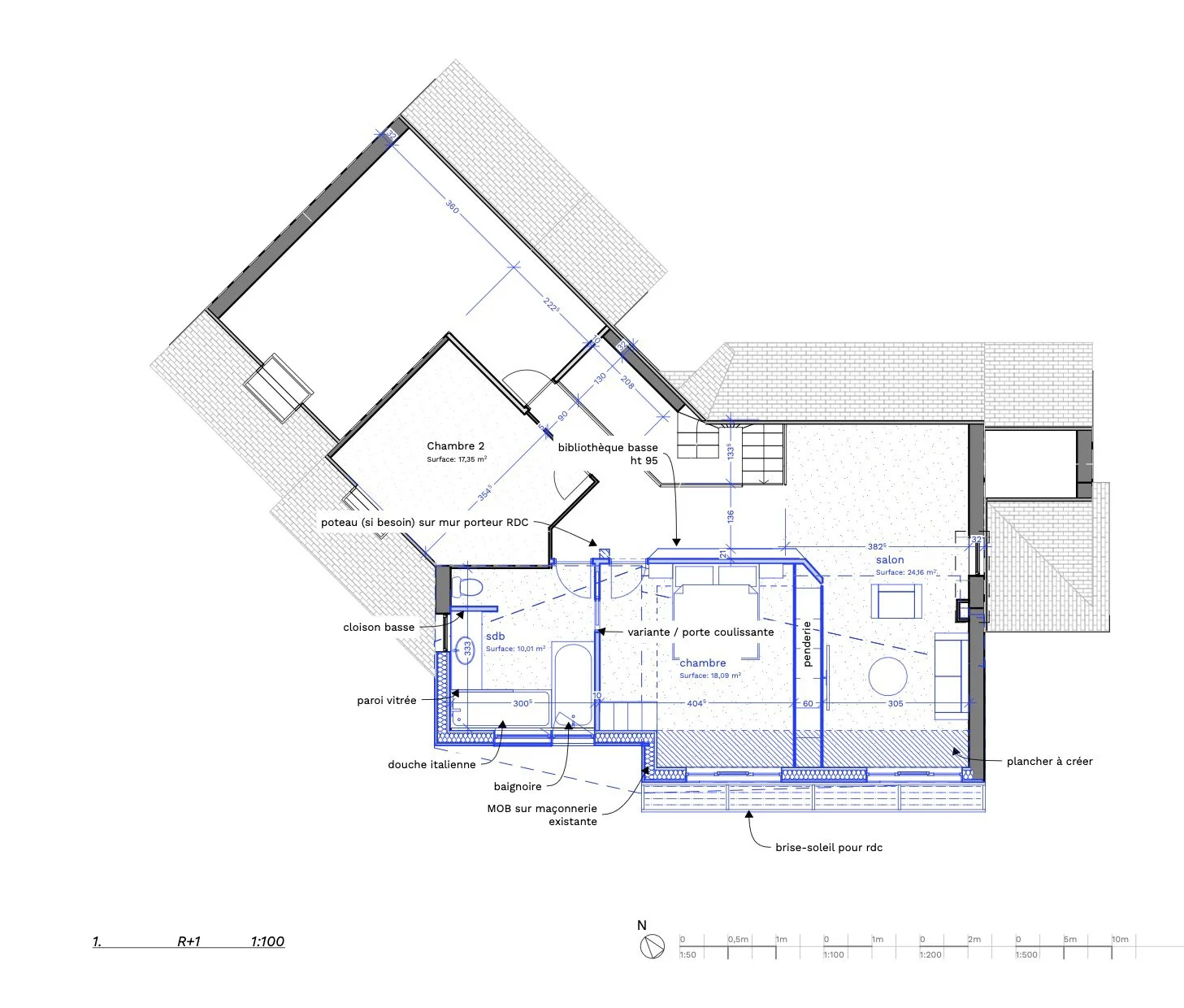
ESQUISSES & AVP
Programme: Surélévation d’une maison de ville.
Localisation: Finistère (29)
Maîtrise d’Ouvrage : privé
Année : en cours
Missions : Esquisses + Avant Projet + Autorisations d’Urbanisme
Occupant depuis plusieurs années cette maison au bord de la rade de Brest, les habitants n’arrivent pas à profiter de l’étage, un espace avec une superbe vue, mais sans réelle fonctionnalité et que le moindre rayon de soleil transforme en sauna.
L’objectif est donc de recréer des lieux de vie ouverts à la vue et isolé pour le rendre enfin habitable.
explorations en phase d’esquisses

